RESTRUCTURATION
D'UN APPARTEMENT


LIEU :

Paris 16ème (Ile de France).

PROGRAMME :

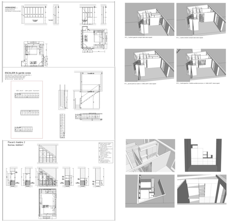
Restrucuration partielle d'un
appartement avec notamment création
d'une liaison en duplex pour création
d'une zone "dortoir" en bas.
L'espace ainsi libéré dans le niveau
existant permet la création d'un bureau
en verrière ouvert sur un large salon et
reprenant le vocabulaire de la verrière de
la cuisine existante.
L'escalier de liaison reste ouvert
et permet de créer avec son palier une
rotule décorative.

MAITRE D'OUVRAGE :

Particulier.

ARCHITECTE :

My favorite Archi (Lucas Séverine).

ENTREPRISE :

BSP Constructions.

MISSION :

De l'esquisse au suivi de chantier.

SURFACE :

SHON : 175 m² (dont 60 m² en totalité).

COUT DES TRAVAUX :

85 000 €HT.

ANNEE DE REALISATION :

2019

Projet précédent projet suivant